The Southlake Chamber of Commerce hosted a groundbreaking ceremony for WorldClass Garages Sept. 30 after construction for the facility started in August.
The details
WorldClass Garages developer and owner Gary Shimmin said a luxury garage space offers a place for car enthusiasts to keep their vehicles and customize their own space.
“For men, they call it 'man caves',” Shimmin said. “For car guys, it’s generally going to be automotive themed stuff. If you’re into Porsches, you’re going to have vintage Porsche pictures and artwork, things like that.”
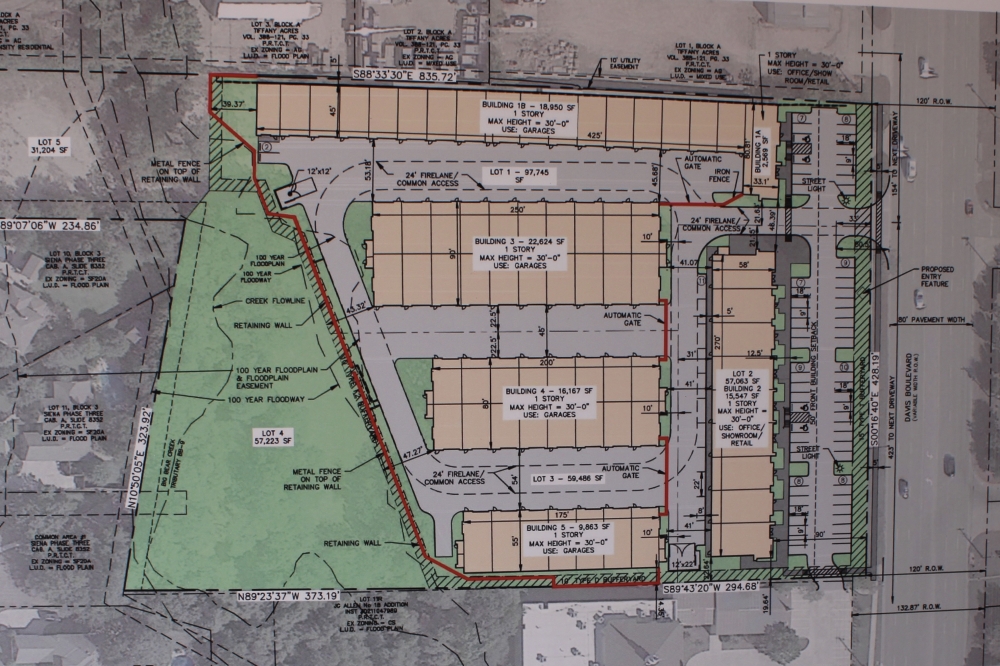
The first phase of the project to be completed next year will construct one building with 16 units and another with 20, Shimmin said. While garages will be for purchase, there will also be one office space available for lease on the property. He said a clubhouse will also be available for garage owners
“When we’re done with everything, there’s going to be four garage buildings,” Shimin said. “[Also] a building that’s going to be retail, commercial, medical, office [or] restaurant [space]. Lots of different possibilities for use in this space right here.”
Shimmin said the retail and commercial space would likely come in a future phase. Southlake City Council first approved this project in 2019, Shimmin said, but development slowed down due to the COVID-19 pandemic.
- Opening July 2026
- 890 Davis Blvd., Southlake
- www.worldclassgarages.us

