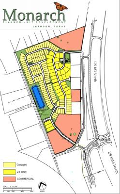
A development that will build 123 cottage-style homes, 70 two-family duplexes and commercial development will move ahead in Leander. The Monarch PUD will be located northwest of the intersection of US 183 and 183A Toll.
Leander City Council approved the zoning change for a planned unit development and the related annexation case Aug. 19 in unanimous votes.
The planned unit development changes include an added masonry wall between the residential and commercial areas and between the north and west property lines, according to city documents. There will also be increased building setbacks next to single-family uses that are not part of the development, per the PUD notes.
Posted Aug. 9
Leander City Council gave first zoning approval for a mixed-use development despite concerns from neighboring residents.
The council voted unanimously to approve the first reading to rezone the property, located at 3200 and 3300 US 183, to a planned unit development on Aug. 5. The 49.8-acre development has a proposal to include 123 cottage-style homes, 70 two-family duplexes, 15.63 acres of general commercial development and 5.44 acres of parks/open space. The second zoning reading is scheduled for Aug. 19.
City council also unanimously approved the first reading of the annexation of 29.46 acres of land in order to approve the zoning application, which will be considered for final approval Aug. 19. The city's planning and zoning commission unanimously recommended denial of the applicant's request due to a number of concerns, such as no street lights present in the proposal and the need for a setback area between the commercial and residential development. The applicant addressed all concerns other than the setback area, Planning Director Robin Griffin said to city council.
Some residents of neighboring subdivisions oppose the development project. Leander residents present at the meeting said more traffic will enter the area and worsen traffic flow. Others cited privacy concerns as part of the proposed wall between the subdivisions is a metal rod fence.
Leander resident Grover Mitchell said the development will make flooding problems worse in the area.
“The density of the [development] proposal is extremely high,” Mitchell said. “[Any flooding] is going to run down right into Wiley Creek Estates Subdivision right across the road. There’s no impervious ground cover. It’s all pasture land.”
Aware of the water drainage issue, Monarch PUD representative Brian Birdwell said they are speaking with the city to adequately address it.
“We know there are going to need to be some improvements made so that the same flow rate that is going there today can be conveyed in a better manner down to the creek where ultimately this water goes,” Birdwell said. “We are legally bound to not making it worse, but we are committed to making it better.”
In response to resident concerns, Council Member Chris Czernek said the council cannot deny the applicant's request because of the city’s rapid growth.
“As someone who sells homes for a living and has homes built behind us too, this is also part of a growing city as well, whether you agree with it or not,” Czernek said. “However, I hear you at the same time.”
Editor's note: This article previously said final approval was given for the zoning case and annexation case. This article has been corrected to say the first reading for the zoning change and annexation was approved Aug. 5 and the final readings are scheduled for Aug. 19.

