Diving in deeper
Located at 1011 Spur 191, Spicewood, the existing library is 47 years old and “deteriorating rapidly,” according to a Jan. 4 news release.
“The building’s condition and inadequate space is limiting the library’s ability to effectively fulfill its mission to serve this community,” said Beth Cottingham, Friends of Spicewood Community Library board president, in the news release.
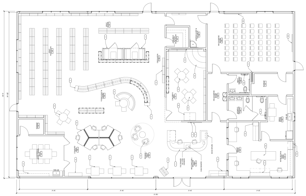
The new facility at the same address plans to offer dedicated spaces for children, teens and adults alongside a multipurpose room for community events and programs. Additionally, the new library will bring computer areas with private spaces and expanded seating.

So far, the library has raised just over $900,000 of its $2 million goal to fund the library, according to the library’s website. Although the building isn’t fully funded yet, the project will be built in phases as fundraising continues, according to the news release.
An event in support of the library, the Building for the Future Gala, will be held Jan. 13 at 6 p.m. in Marble Falls at Lakeside Pavilion. The event will feature food, music, an open bar, a live auction, a guest appearance from country singer Cory Morrow and more. Individual tickets cost $250, while a table of eight costs $1,800.
Click here for more information about the new library, where to donate and the upcoming event.

